VILLA SINGOLA IDEALE PER B&B-STUDENTI E INVESTIMENTO!

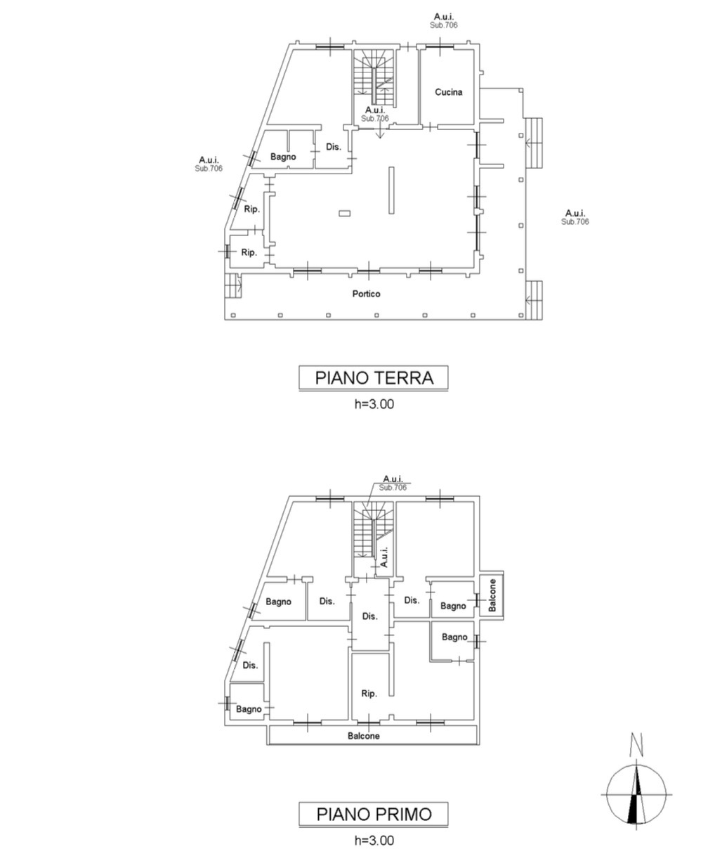
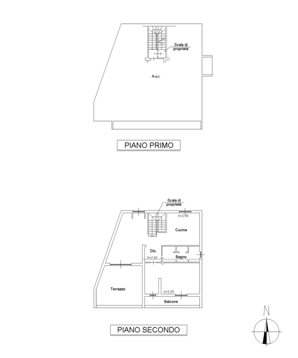
Villa esclusiva in vendita a Dalmine perfetta come abitazione privata, B&B o investimento immobiliare Proponiamo in vendita una prestigiosa villa indipendente a Dalmine, completamente ristrutturata all’interno, immersa nel verde e situata in posizione strategica: a pochi passi dal centro, a soli 4 km da Bergamo, a pochi chilometri dall’aeroporto di Orio Al Serio e comodissima all’ingresso dell’autostrada A4. La città di Dalmine, sede del polo di ingegneria dell’Università di Bergamo, rappresenta un contesto in forte crescita e ad alto potenziale, ideale anche per chi cerca un immobile a reddito. La villa si distingue per la sua straordinaria versatilità: perfetta come abitazione per una grande famiglia, come struttura ricettiva (B&B, affitti brevi o lunghi) o come investimento immobiliare, grazie alla possibilità di suddividere gli spazi in tre appartamenti indipendenti. L’immobile si sviluppa su 4 livelli e si circonda di un ampio giardino privato su quattro lati, ideale per momenti di relax e colazioni all’aperto, grazie al gazebo e all’area barbecue già predisposta. Composizione: Piano terra: elegante porticato d’ingresso, spazioso salone, cucina arredata e due camere con bagno e con predisposizione di angolo cottura, perfette per ospiti o per avviare subito un’attività di B&B. Primo piano: quattro camere indipendenti, tutte con bagno privato, di cui una con cabina armadio e tre con balcone, tutte con predisposizione di angolo cottura. Ogni unità può essere destinata sia a camere per ospiti sia a monolocali da affittare, o per avviare subito un’attività di B&B. Secondo piano (attico): appartamento indipendente con luminosa zona giorno e cucina a vista, ampia camera matrimoniale, bagno e terrazzo panoramico. Piano interrato: grande locale cantina da adibire a taverna/sala hobby, locale palestra, bagno, lavanderia, locale caldaia e garage capiente per almeno 4 auto. Questa villa rappresenta un’opportunità unica per chi cerca una casa di prestigio, immersa nella tranquillità ma vicina a tutti i servizi, e soprattutto per chi desidera investire in un immobile con forte potenziale turistico, universitario e residenziale. Qui è possibile vivere comodamente e, allo stesso tempo, gestire il proprio sogno imprenditoriale senza muoversi da casa. Un immobile, quindi, pronto ad accogliere sia chi desidera viverci, sia chi intende trasformarlo in un progetto redditizio.


Dettagli Immobile

  • Locali: APPARTAMENTI / CAMERE E B&B
  • Metratura: 623 MQ
  • Condizioni: NUOVO
  • Giardino: PRIVATO
  • Bagni: BAGNI + LAVANDERIA
  • Piano: SU PIU' LIVELLI
  • Balconi e terrazzi: SI
  • Box: AUTORIMESSA E POSTI AUTO COPERTI
  • Classe energetica: IN CORSO
  • Prezzo: € 749.000

RICHIEDI INFORMAZIONI

VILLA SINGOLA IDEALE PER B&B-STUDENTI E INVESTIMENTO!
VILLA SINGOLA IDEALE PER B&B-STUDENTI E INVESTIMENTO!
VILLA SINGOLA IDEALE PER B&B-STUDENTI E INVESTIMENTO!
VILLA SINGOLA IDEALE PER B&B-STUDENTI E INVESTIMENTO!
VILLA SINGOLA IDEALE PER B&B-STUDENTI E INVESTIMENTO!
VILLA SINGOLA IDEALE PER B&B-STUDENTI E INVESTIMENTO!
VILLA SINGOLA IDEALE PER B&B-STUDENTI E INVESTIMENTO!
VILLA SINGOLA IDEALE PER B&B-STUDENTI E INVESTIMENTO!
VILLA SINGOLA IDEALE PER B&B-STUDENTI E INVESTIMENTO!
VILLA SINGOLA IDEALE PER B&B-STUDENTI E INVESTIMENTO!
VILLA SINGOLA IDEALE PER B&B-STUDENTI E INVESTIMENTO!
VILLA SINGOLA IDEALE PER B&B-STUDENTI E INVESTIMENTO!
VILLA SINGOLA IDEALE PER B&B-STUDENTI E INVESTIMENTO!
VILLA SINGOLA IDEALE PER B&B-STUDENTI E INVESTIMENTO!
VILLA SINGOLA IDEALE PER B&B-STUDENTI E INVESTIMENTO!
VILLA SINGOLA IDEALE PER B&B-STUDENTI E INVESTIMENTO!
VILLA SINGOLA IDEALE PER B&B-STUDENTI E INVESTIMENTO!
VILLA SINGOLA IDEALE PER B&B-STUDENTI E INVESTIMENTO!
VILLA SINGOLA IDEALE PER B&B-STUDENTI E INVESTIMENTO!
VILLA SINGOLA IDEALE PER B&B-STUDENTI E INVESTIMENTO!
VILLA SINGOLA IDEALE PER B&B-STUDENTI E INVESTIMENTO!
VILLA SINGOLA IDEALE PER B&B-STUDENTI E INVESTIMENTO!
VILLA SINGOLA IDEALE PER B&B-STUDENTI E INVESTIMENTO!
VILLA SINGOLA IDEALE PER B&B-STUDENTI E INVESTIMENTO!
VILLA SINGOLA IDEALE PER B&B-STUDENTI E INVESTIMENTO!
VILLA SINGOLA IDEALE PER B&B-STUDENTI E INVESTIMENTO!
VILLA SINGOLA IDEALE PER B&B-STUDENTI E INVESTIMENTO!
VILLA SINGOLA IDEALE PER B&B-STUDENTI E INVESTIMENTO!
VILLA SINGOLA IDEALE PER B&B-STUDENTI E INVESTIMENTO!
VILLA SINGOLA IDEALE PER B&B-STUDENTI E INVESTIMENTO!
VILLA SINGOLA IDEALE PER B&B-STUDENTI E INVESTIMENTO!
VILLA SINGOLA IDEALE PER B&B-STUDENTI E INVESTIMENTO!
VILLA SINGOLA IDEALE PER B&B-STUDENTI E INVESTIMENTO!
VILLA SINGOLA IDEALE PER B&B-STUDENTI E INVESTIMENTO!
VILLA SINGOLA IDEALE PER B&B-STUDENTI E INVESTIMENTO!
VILLA SINGOLA IDEALE PER B&B-STUDENTI E INVESTIMENTO!
VILLA SINGOLA IDEALE PER B&B-STUDENTI E INVESTIMENTO!
VILLA SINGOLA IDEALE PER B&B-STUDENTI E INVESTIMENTO!
VILLA SINGOLA IDEALE PER B&B-STUDENTI E INVESTIMENTO!
VILLA SINGOLA IDEALE PER B&B-STUDENTI E INVESTIMENTO!
VILLA SINGOLA IDEALE PER B&B-STUDENTI E INVESTIMENTO!
VILLA SINGOLA IDEALE PER B&B-STUDENTI E INVESTIMENTO!
VILLA SINGOLA IDEALE PER B&B-STUDENTI E INVESTIMENTO!
VILLA SINGOLA IDEALE PER B&B-STUDENTI E INVESTIMENTO!
VILLA SINGOLA IDEALE PER B&B-STUDENTI E INVESTIMENTO!
VILLA SINGOLA IDEALE PER B&B-STUDENTI E INVESTIMENTO!
VILLA SINGOLA IDEALE PER B&B-STUDENTI E INVESTIMENTO!
VILLA SINGOLA IDEALE PER B&B-STUDENTI E INVESTIMENTO!
VILLA SINGOLA IDEALE PER B&B-STUDENTI E INVESTIMENTO!
VILLA SINGOLA IDEALE PER B&B-STUDENTI E INVESTIMENTO!
VILLA SINGOLA IDEALE PER B&B-STUDENTI E INVESTIMENTO!
VILLA SINGOLA IDEALE PER B&B-STUDENTI E INVESTIMENTO!
VILLA SINGOLA IDEALE PER B&B-STUDENTI E INVESTIMENTO!
VILLA SINGOLA IDEALE PER B&B-STUDENTI E INVESTIMENTO!
VILLA SINGOLA IDEALE PER B&B-STUDENTI E INVESTIMENTO!
VILLA SINGOLA IDEALE PER B&B-STUDENTI E INVESTIMENTO!
VILLA SINGOLA IDEALE PER B&B-STUDENTI E INVESTIMENTO!
VILLA SINGOLA IDEALE PER B&B-STUDENTI E INVESTIMENTO!
VILLA SINGOLA IDEALE PER B&B-STUDENTI E INVESTIMENTO!
VILLA SINGOLA IDEALE PER B&B-STUDENTI E INVESTIMENTO!
VILLA SINGOLA IDEALE PER B&B-STUDENTI E INVESTIMENTO!
VILLA SINGOLA IDEALE PER B&B-STUDENTI E INVESTIMENTO!
VILLA SINGOLA IDEALE PER B&B-STUDENTI E INVESTIMENTO!
VILLA SINGOLA IDEALE PER B&B-STUDENTI E INVESTIMENTO!
VILLA SINGOLA IDEALE PER B&B-STUDENTI E INVESTIMENTO!
VILLA SINGOLA IDEALE PER B&B-STUDENTI E INVESTIMENTO!
VILLA SINGOLA IDEALE PER B&B-STUDENTI E INVESTIMENTO!
VILLA SINGOLA IDEALE PER B&B-STUDENTI E INVESTIMENTO!
VILLA SINGOLA IDEALE PER B&B-STUDENTI E INVESTIMENTO!
VILLA SINGOLA IDEALE PER B&B-STUDENTI E INVESTIMENTO!
VILLA SINGOLA IDEALE PER B&B-STUDENTI E INVESTIMENTO!
VILLA SINGOLA IDEALE PER B&B-STUDENTI E INVESTIMENTO!
VILLA SINGOLA IDEALE PER B&B-STUDENTI E INVESTIMENTO!